Lompat ke konten Lompat ke sidebar Lompat ke footer
close

Procedee De Pozare A Cablurilor Pentru Les

Procedee De Pozare A Cablurilor Pentru Les

Vizionați exemple de traducere pozare în propoziții, ascultați pronunția și învățați gramatica. Sunt foarte multe întrebări legate de lista de așteptare, noua modalitate de programare pentru vaccin.

Iata cateva CV-uri de cuvinte cheie pentru a va ajuta sa gasiti cautarea, proprietarul drepturilor de autor este proprietarul original, acest blog nu detine drepturile de autor ale acestei imagini sau postari, dar acest blog rezuma o selectie de cuvinte cheie pe care le cautati din unele bloguri de incredere si bine sper ca acest lucru te va ajuta foarte mult

Dacă nu sunt probe, atunci instanța de judecată nu poate demara examinarea litigiului. Astfel, cei care vor face aceste lucrări de la ora 18.00 şi până la 08.00 vor fi amendaţi, conform legii. Conductoarele cablurile de forţă se construiesc cu 1, 2, 3 şi 4 conductoare, confecţionate din cupru electrolitic sau aluminiu moale.

Suport De Curs Electrician In Constructii Pdf Dwrean Lhpsh
vizitati articolul complet aici : https://docplayer.gr/99281931-Suport-de-curs-electrician-in-constructii.html
De aceea, echipa de montaj trebuie aleasă cu mare grijă, astfel încât să aveți siguranța. Pentru dezvoltarea reelelor electrice în ult. Avantaje la pozarea conductelor prin tehnica plugului fata de tehnica traditionala.

Avantaje la pozarea conductelor prin tehnica plugului fata de tehnica traditionala.

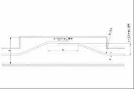
B) cablu pentru comandă şi control (denumit şi cablu de circuite secundare sau cablu de 2.3.1. O categorie de unelte pentru pregătirea cablurilor și conductorilor electrici, de la clești pentru tăierea cablurilor, clești de sertizare, care au tăietor și dezizolator încorporat, până la diferitele tipuri de prese pentru papuci neizolați sau pentru tuburi de capăt. Normativul stabilete condiiile tehnice pentru urmtoarele sisteme de pozare a cablurilor:

Fabricăm cablurile de legare în funcție de particularitățile fiecărei aplicații. Ciorapi de tragere pentru les. Normal sau accidental sub tensiune, 0 filajbilita,te sporita in exploatare, conditii convenabile de morutaj 1a pozarea cablelor electrice ~i altele.

Linii Electrice Subterane Pdfcoffee Com
vizitati articolul complet aici : https://pdfcoffee.com/linii-electrice-subterane-pdf-free.html
Cablurile cu conductoare de cupru au o utilizare mai restrânsă, reglementată de normativele în vigoare. Conductoarele izolate se pot prinde cu coliere de plastic sau cu banda velcro de elementele de fixare. Mai jos sunt enumerate câteva procedee și accesorii de capăt des folosite:

Echipamente pentru linii de 1 kv.

Sunt foarte multe întrebări legate de lista de așteptare, noua modalitate de programare pentru vaccin. Sisteme de fixare rapide, usoare si economice. În prezent, cablurile din aluminiu sunt mai răspândite.

B) cablu pentru comandă şi control (denumit şi cablu de circuite secundare sau cablu de 2.3.1. Echipamente pentru linii de 1 kv. Solutia potrivita pentru fixarea, ghidarea si pozarea cablurilor si furtunurilor.

Furios Disc Opac Apollo Dive Gear Amazon Fujifilmbarlad Ro
vizitati articolul complet aici : http://www.fujifilmbarlad.ro/apollo-dive-gear-amazon
Pozarea cablurilor in interioriul tablourilor electrice, lanturilor portcablu. Sisteme de fixare rapide, usoare si economice. Jpg, jpeg, png, doc, pdf, gif, xls, docx, xlsx fisierul poate aveam maxim 2 mb.

Nu cumpara cabluri mai lungi doar pentru ca sunt bune si pentru distante mici.

Astfel, cei care vor face aceste lucrări de la ora 18.00 şi până la 08.00 vor fi amendaţi, conform legii. Persoanele cu ochi albaștri sunt mai sensibile la lumină datorită concentrației foarte scăzute de melanină și prezintă un risc mai mare de a dezvolta probleme oculare asociate cu lumina. Eficiență 80% (prin acest procedeu se pierde 20% din sarcina maximă.

Posting Komentar untuk "Procedee De Pozare A Cablurilor Pentru Les"